Podnájem obchodního prostoru o velikosti 216 m², Praha 7, Holešovice, ul. U Uranie

16,50 EUR za m2/měsíc
85 Kč/m2 /měsíc + DPH + média (elektřina, chlazení, topení, voda) cca 60 Kč/m2 /měsíc + DPH

B - Velmi úsporná

Ukázat na mapě Mám zájem

Popis nabídky

Podnájem obchodních prostor v moderní budově office centra Classic 7 v Praze 7 - Holešovice.

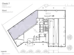
Obchod, přízemí, 216 m2
Dispozice:
● otevřený prostor se 4 samostatnými vstupy z ulice
● několik malých místností (zázemí) – sádrokartonové příčky
● vlastní toalety
● úklidová komora
● prostor pro rack
● částečně osvětlení
● podlahová krytina – pvc, dlažba
● celoprosklené výlohy ze 2 stran
● prostor je určen k případným úpravám na míru
● zabezpečovací zařízení

Budova M je závěrečnou etapou celého areál Classic 7 Business Park. Je koncipována jako šestipatrová budova s ustupujícím pátým a šestým patrem a přirozeně splývá s okolními budovami areálu.

Office centrum Classic 7 nabízí svým nájemcům výběr z několika restaurací a kaváren, Billy apod.

Velmi dobrá dostupnost MHD, jednu zastávku tramvají na metro Nádraží Holešovice. V této lokalitě pro Vás můžeme připravit další zajímavé nabídky.

K dispozici ihned.

Možnost dalších výměr v budově.

Pro více informací mě neváhejte kontaktovat, rád Vám zařídím osobní prohlídku.

V této lokalitě Vám můžeme nabídnout další zajímavé prostory. Více nabídek z našeho portfolia naleznete na našich webových stránkách.

~ Neplatíte provizi ~

Informace o nabídce

Lokalita
Okres Hlavní město Praha
Město Praha
Městská část Praha 7
Informace o nabídce
Číslo zakázky N77340
Datum aktualizace 23. 7. 2024
Druh prostor Obchodní
Druh stavby Cihlová
Stav objektu Velmi dobrý
Typ domu Patrový
Plocha prostor 216 m2
Užitná plocha 216 m2
Počet míst k parkování 12
K dispozici od 15. 5. 2024
Umístění objektu Rušná část obce
PENB: Náročnost budovy B - Velmi úsporná
PENB: Ukazatel náročnosti budovy 143 kWh/m2
PENB: Norma vyhláška 148/2007 Sb.
Výtah
Ostraha - PCO
Recepce
Ostraha
Klimatizace
Telekomunikace
Telefon, Internet
Inženýrské sítě
Elektřina, Kanalizace, Plyn, Vodovod
Elektřina
230V
Parkování
ANO

Máte zájem o tuto nemovitost?

Kontaktujte přímo makléře, který ji má na starost.
Zdeněk Pýcha

Napište nám

*
*
*