Pronájem kancelářských prostor 626 m² Praha 1 - Náměstí republiky

30 EUR za m2/měsíc
+ servisní poplatky 130Kč/m² měsíčně. Neplatíte provizi

G - průkaz nedodán

Ukázat na mapě Mám zájem

Popis nabídky

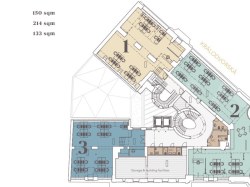
Nabízíme k pronájmu kancelářeské prostory ve 6. NP o rozloze 626 m² v centru Prahy, Náměstí republiky. Jedná se o unikátní historickou budovu z roku 1905
Budova v současné době prochází celkovou rekonstrukcí. Výsledkem budou luxusní kancelářské prostory s nejmodernějšími technologiemi. Můžete vybírat z celkem 3133 m² kancelářské plochy v několika variantách.

Poloha v centru Prahy zaručuje vynikající dopravní dostupnost zejména MHD metro/tram. V sousedství budovy se nachází rozsáhlé podzemí garáže OC Kotva, kde mohou pakovat nejen zaměstnanci, ale i Vaši hosté.

Prostory jsou k dispozici od 4Q/2024

Pro více informací mne neváhejte kontaktovat, rád Vám zařídím osobní prohlídku.

V této lokalitě Vám můžeme nabídnout další zajímavé prostory. Více nabídek z našeho portfolia naleznete na našich webových stránkách.

Mé služby jsou pro Vás bezplatné.

~ Neplatíte provizi ~

Informace o nabídce

Lokalita
Okres Hlavní město Praha
Město Praha
Městská část Praha 1
Informace o nabídce
Číslo zakázky N77200
Datum aktualizace 1. 2. 2024
Druh prostor Kancelář
Druh stavby Smíšená
Stav objektu Po rekonstrukci
Typ domu Patrový
Plocha prostor 625.6 m2
Užitná plocha 625.6 m2
Počet podlaží 8
Rok rekonstrukce 2024
K dispozici od 1. 10. 2024
Umístění objektu Centrum obce
PENB: Náročnost budovy G - průkaz nedodán
Sociální zařízení
Výtah
Recepce
Ostraha
Klimatizace
Vytápěno
Schodiště
Kamenné, Ocelové
Telekomunikace
Telefon, Internet, Kabelové rozvody, Optika
Inženýrské sítě
Elektřina, Kanalizace, Plyn, Vodovod
Topení
Ústřední plynové
Doprava
Silnice, MHD
Elektřina
400V, 230V
Voda
Dálkový vodovod
Parkování
ANO

Máte zájem o tuto nemovitost?

Kontaktujte přímo makléře, který ji má na starost.
Zdeněk Pýcha

Napište nám

*
*
*