Pronájem kancelářských prostor 845 m² v lokalitě Praha 1 - Nové Město

16,75 EUR za m2/měsíc
+ servisní poplatky 190,- Kč/m². včetně energií. ~ Neplatíte provizi ~

C - Úsporná

Ukázat na mapě Mám zájem

Popis nabídky

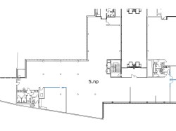
Nabízíme Vám k pronájmu reprezentativní kancelářské prostory o celkové výměře 845 m², které se nachází v 5.NP historické části administrativního objektu Bredovský dvůr v samotném centru Prahy 1 - Nové Město.

Prostor disponuje vlastním sociálním zařízením, kuchyňkou, otevíratelnými okny, zdvojenou podlahou apod. Dispozici je možné upravit na přání klienta (viz návrh budoucího možného layoutu).

Objekt Bredovský Dvůr nabízí recepci, kolárnu, otevíratelná okna, zdvojenou podlahu, možnost pronájmu zasedací místnosti, vyhlášenou restauraci se zahrádkou a samozřejmostí je i bezbariérový přístup. Možnost parkování návštěvy v garážích.

Výhodou budovy je především poloha v centru města, s výbornou dopravní dostupností – všechny tři linky metra jen pár kroků od budovy, stejně tak tramvajové zastávky i Hlavní nádraží.
V okolí naleznete spoustu restaurací, kaváren, kulturních zařízení a mnoho dalších.
Pro nájemce možnost parkování (€ 145/měsíc).

K dispozici od 2/2025.
Fotografie jsou ilustrační z jiné kanceláře v objektu.

Pro více informací mě neváhejte kontaktovat, rád Vám zařídím osobní prohlídku.

V této lokalitě Vám můžeme nabídnout další zajímavé prostory. Více nabídek z našeho portfolia naleznete na našich webových stránkách.

Mé služby jsou pro Vás bezplatné.

~ Neplatíte provizi ~

Informace o nabídce

Lokalita
Okres Hlavní město Praha
Město Praha
Městská část Praha 1
Informace o nabídce
Číslo zakázky N77701
Datum aktualizace 14. 10. 2024
Druh prostor Kancelář
Druh stavby Cihlová
Stav objektu Velmi dobrý
Typ domu Patrový
Plocha prostor 845 m2
Užitná plocha 845 m2
Počet podlaží 7
K dispozici od 1. 2. 2025
Umístění objektu Centrum obce
PENB: Náročnost budovy C - Úsporná
PENB: Ukazatel náročnosti budovy 81 kWh/m2
PENB: Norma vyhláška 78/2013 Sb.
Recepce
Bezbariérový přístup
Klimatizace
Telekomunikace
Telefon, Internet, Kabelové rozvody, Optika
Doprava
Vlak, Silnice, Autobus, MHD
Parkování
ANO

Máte zájem o tuto nemovitost?

Kontaktujte přímo makléře, který ji má na starost.
Zdeněk Pýcha

Napište nám

*
*
*