Pronájem obchodního prostoru 161 m² Hagibor, ul. Vinohradská - Praha 3

Info v RK
+ servisní poplatky 100 Kč/m²/měs. ~ Neplatíte provizi ~

G - Mimořádně nehospodárná

Ukázat na mapě Mám zájem

Popis nabídky

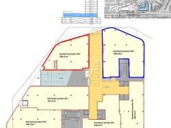
Nabízíme Vám k pronájmu reprezentativní obchodní prostory o celkové výměře 161 m², včetně addonu, které se nachází v 1. NP moderní budovy na pražských Vinohradech.

Hagibor, to je oáza obklopená zelení s čistým vzduchem, promyšleným konceptem a důrazem na kvalitu veřejného prostoru. Město uvnitř města, různorodé a žijící, ve kterém najdete vše, co potřebujete, na jednom místě.

Šest budov a více než 100 000 m² ploch je dost prostoru k tomu, aby se vaše firma mohla dále rozvíjet a expandovat.

Lokalita Hagiboru je skvěle dostupná různými dopravními prostředky. Díky poloze u dopravního uzlu se pomocí metra, tramvají a autobusů rychle dopravíte po celé Praze.

Metro je v centru již za 6 minut. Blízká křižovatka ulic Vinohradské a Jana Želivského umožňuje vydat se pohodlně do všech směrů po Praze i mimo město autem, což v budoucnu ještě usnadní plánovaná východní část městského okruhu.

Prostor lze dělit na dvě části.

K dispozici ined

Pro více informací mě neváhejte kontaktovat, rád Vám zařídím osobní prohlídku.

V této lokalitě Vám můžeme nabídnout další zajímavé prostory. Více nabídek z našeho portfolia naleznete na našich webových stránkách.

Mé služby jsou pro Vás bezplatné.

~ Neplatíte provizi ~

Informace o nabídce

Lokalita
Okres Hlavní město Praha
Město Praha
Městská část Praha 3
Informace o nabídce
Číslo zakázky N77398
Datum aktualizace 13. 5. 2025
Druh prostor Obchodní
Druh stavby Skeletová
Stav objektu Velmi dobrý
Typ domu Patrový
Plocha prostor 161 m2
Užitná plocha 141 m2
K dispozici od 1. 5. 2025
Umístění objektu Rušná část obce
PENB: Náročnost budovy G - Mimořádně nehospodárná
Bezbariérový přístup
Klimatizace
Vytápěno
Parkování
ANO

Máte zájem o tuto nemovitost?

Kontaktujte přímo makléře, který ji má na starost.
Zdeněk Pýcha

Napište nám

*
*
*